








Customize this plan to make it perfect for you
- No upfront payment
- Risk-free
- Get your quote in 48 hours!
Cost to build your dream home
- Give us zip/postal code
- Get a FREE Instant quote !
- Sent to your email
Modification Request
In order to receive your free modification quote, please fill out the from below. Be as detailed and descriptive as possible.
You have 2 options:
1. Provide the request in text form, if the modifications are simple.
for example: add a jack-and-jill sink in bedroom 2
2. Provide a sketch, using the floorplan, of your requested modifications, if the modifications are more complex.
- No upfront payment
- Get fist draft in 48 hours
Cost to Build of your dream
Say goodbye to the guesswork of construction costs with our custom cost estimator.
It's Accurate & Up to date.
Our estimator accounts for the house plan, location, and building materials you choose, with current market costs for labor and materials.
It's Fast & Flexible.
Receive a personal estimate in two minutes instead of 2 days as many competitors offer.
It's Inexpensive.
Why pay up to $50 for a cost estimate when you can get it for free with our website? We believe in empowering our customers with knowledge and providing them with the tools they need to make informed decisions. That's why we offer our cost estimator at no charge.
Estimate the construction cost instantly
Customize this plan to make it perfect for you
- No upfront payment
- Risk-free
- Get your quote in 48 hours!
Cost to build your dream home
- Give us zip/postal code
- Get a FREE Instant quote !
- Sent to your email
2858
Homes designed
10431
Homes built
31
Years of experience
I design the homes that my clients want to build, not the home I want them to build
Buy with peace of mind knowing that your home has been designed by award winning designer Michael W. Garrell*. Mike has earned more than 200 professional awards, with numerous Street of Dreams® honers. One of his many show homes has earned him the prestigious “Best in American Living Award” (BALA) from Professional Builder magazine.




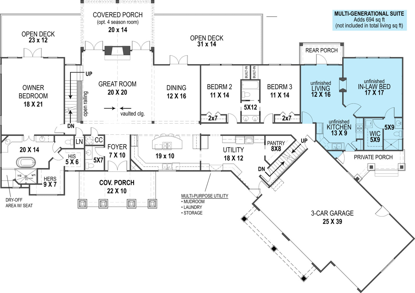
The Pepperwood Place multi-generational house plan is a sophisticated and charming retreat your entire family will love. This spacious ranch house plan offers multiple unfinished/future areas your family can grow into over the years.
The main living area spanning 2,830 sf. boasts sprawling entertaining spaces that flow outside to the outdoor living area. The vaulted great room with stone fireplace and French doors to the rear covered porch (or optional 289 sf. 4-seasons room) is the dramatic focal point of the main level. The top-of-the-line chef's kitchen is clad with premium finishes and fixtures including granite counters, professional-grade appliances, and a large center island with bar seating.
The Pepperwood Place craftsman house plan boasts a 694 sf. in-law apartment with full kitchen, stack-able washer & dryer, living room with 2-sided fireplace, and an oversized bedroom with en-suite bath and walk-in closet. Two covered porches and quick access to the 3-car garage give in-law's the independence and privacy they want while still living close to their loved ones.
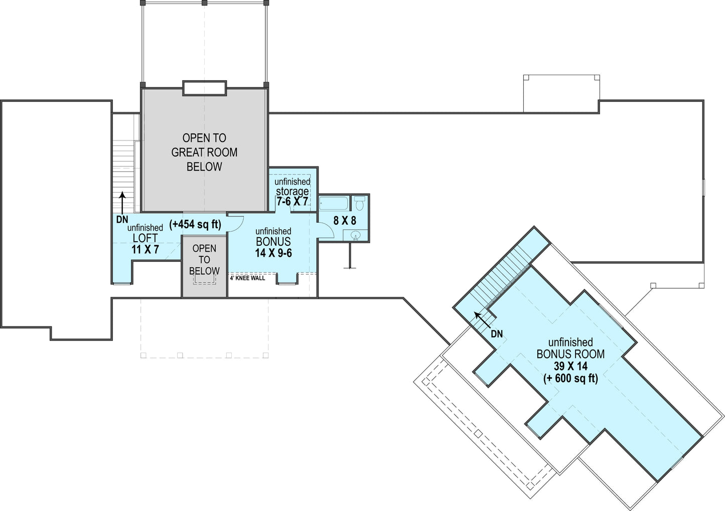
A spacious loft, home office with private bathroom, and storage closet provide an additional 454 sf. of future space above the main house. The expandable space doesn't stop there! A bonus room spanning 600 sf. above the garage is the perfect setting for a media room, man cave, or holiday storage.