Carter 3 House Plan | Plan GA25069
Here is what is included with your Plan purchase:
1. Exterior elevations – Included are front, rear, left and right side views of the exterior of the house. Exterior materials, construction details and measurements are also noted.
2. Foundation Plan – Includes layout of foundation support walls, plus excavated and unexcavated areas, if applicable.
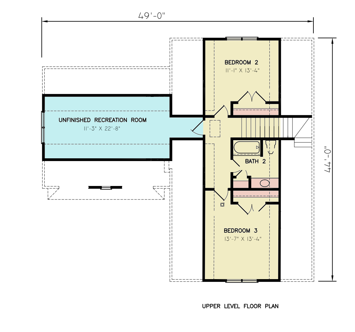
3. Detailed Floor Plans – These plans show the layout of each floor of the house, including room dimensions, window and doors sizes and keys for cross section details provided later in the plans. Engineered floor joist, ceiling joist and roof plans are not included in some plans. Local engineers or manufacturing engineers are widely available to supply the services that apply to local geographic conditions.
4. Interior Details – These drawings show the specific details and design of special interior features.
5. Roof Plan – Includes the overall layout for roof construction. If trusses are used, we recommend using a local truss manufacturer to ensure compliance with local codes and regulations.
6. Cross Section Details – Important changes in floor, ceiling and roof heights or the relationship of one level to another are called out. Exterior details such as railing and banding may also be shown.
7. Electrical – Electrical floor plan schematics for 1st and 2nd floors.
1. How much does it cost to have modifications done to home plans?
Costs to modify a home plan can vary a lot, depending on the particular plan and the kinds of changes you are looking for. Simple modifications like: Enlarging a bathroom or Removing a wall to create an open floor plan would cost a few hundred dollars, to more complex ones like: adding extra bedrooms or adding a second story to a single-story home can be thousands of dollars.
2. Do you modify plans and what is your procedure?
Yes, we modify plans according to your requirements and needs. Its risk free, and we provide quotes within 48 hours. Please click on the orange "Customize this Plan" button below to start.
3. Are there photographs available of the home I am interested in?
Many of the homes featured have accompanying photographs. If there are no photographs posted on the plan page for a particular home, a render is available. New photos are added to the site regularly as they become available. (Note: The photographs displayed online may differ slightly from the actual plans, depending on modifications made by the owner/builder. Please refer to the floor plan for the accurate layout of the home.)
4. Can I get an address where this home plan has been built, so I can see the finished home?
In order to maintain our customers' privacy, we do not track this information. However, we have photographs for many of our home plans.
5. How is the living square footage of a home plan calculated?
We typically calculate square footage from outside the exterior frame wall, not including features like decks, porches, patios, screened porches, verandas, fireplaces, garages, basements, attics, future space, or bonus rooms. This means a livable space that is heated and finished (with drywall, paint, and carpeting, for example). If you need to clarify the square footage of a particular home plan, please contact us.
6. Will your plans be signed or stamped by an architect or engineer?
Our plans, as all architectural plans sold, will not be signed/stamped by the engineer or architect due to variations in site conditions and different local building codes and zoning regulations for each region. For your own safety, your builder or local engineer is responsible for following codes addressing: site conditions, Wind, Storm Surge, Snow Loads, Seismic and Soil Stability, etc. The builder must be responsible for this procedure.
Additional information
| Total Sqft | 1554 |
| 1st Floor | 936 |
| 2nd Floor | 618 |
| Garage | 506 |
| Baths | 2 |
| Beds | 3 |
| Half Baths | 1 |
| Master Bedroom | 1 |
| Width | 49'10" |
| Depth | 44' |
| W Ref | 49'10' |
| D Ref | 44' |
| Ridge Height | 23'9" |
PDF (Single License)
PDF package includes working drawings, license to build once, and copyright release for minor changes. PDF file will be emailed promptly after purchase.
CAD (Single License)
CAD package includes working drawings in AutoCAD format, license to build once, and necessary files for more significant modifications. It is the preferred file format for builders. CAD file will be emailed promptly after purchase.
Choose a building foundation for your home. Foundation provides the stability of the home’s structure from the ground.
Basement - This is the deepest form of foundation for a house and can be converted to storage or living areas.
Slab - This foundation is made of concrete poured directly on a solid ground and reinforced with steel rods.
Crawlspace - This consists of short foundation walls that stand on footing to elevate the house from the ground. The space can be used for wiring, plumbing and storage.
Right-Reading Reverse
An option to reverse the plan including texts and dimensions to make them readable.
2x4 or 2x6 Conversion
Convert the exterior framing other than the standard framing included in the plan.
Low price guarantee
Find A Lower Price And We'll Beat It By 10%
Additional information
| Total Sqft | 1554 |
| 1st Floor | 936 |
| Garage | 506 |
| Baths | 2 |
| Beds | 3 |
| Half Baths | 1 |
| Master Bedroom | 1 |
| Width | 49'10" |
| Depth | 44' |
| W Ref | 49'10' |
| D Ref | 44' |
Couldn't load pickup availability

Customize this plan to make it perfect for you
- No upfront payment
- Risk-free
- Get your quote in 48 hours!
Cost to build your dream home
- Give us zip/postal code
- Get a FREE Instant quote !
- Sent to your email
Modification Request
In order to receive your free modification quote, please fill out the from below. Be as detailed and descriptive as possible.
You have 2 options:
1. Provide the request in text form, if the modifications are simple.
for example: add a jack-and-jill sink in bedroom 2
2. Provide a sketch, using the floorplan, of your requested modifications, if the modifications are more complex.
- No upfront payment
- Get fist draft in 48 hours
Cost to Build of your dream
Say goodbye to the guesswork of construction costs with our custom cost estimator.
It's Accurate & Up to date.
Our estimator accounts for the house plan, location, and building materials you choose, with current market costs for labor and materials.
It's Fast & Flexible.
Receive a personal estimate in two minutes instead of 2 days as many competitors offer.
It's Inexpensive.
Why pay up to $50 for a cost estimate when you can get it for free with our website? We believe in empowering our customers with knowledge and providing them with the tools they need to make informed decisions. That's why we offer our cost estimator at no charge.
Estimate the construction cost instantly
Customize this plan to make it perfect for you
- No upfront payment
- Risk-free
- Get your quote in 48 hours!
Modification Request
In order to receive your free modification quote, please fill out the from below. Be as detailed and descriptive as possible.
You have 2 options:
1. Provide the request in text form, if the modifications are simple.
for example: add a jack-and-jill sink in bedroom 2
2. Provide a sketch, using the floorplan, of your requested modifications, if the modifications are more complex.
- No upfront payment
- Get first draft in 48 hours
Cost to build your dream home
- Give us zip/postal code
- Get a FREE Instant quote !
- Sent to your email
Cost to Build of your dream
Say goodbye to the guesswork of construction costs with our custom cost estimator.
It's Accurate & Up to date.
Our estimator accounts for the house plan, location, and building materials you choose, with current market costs for labor and materials.
It's Fast & Flexible.
Receive a personal estimate in two minutes instead of 2 days as many competitors offer.
It's Inexpensive.
Why pay up to $50 for a cost estimate when you can get it for free with our website? We believe in empowering our customers with knowledge and providing them with the tools they need to make informed decisions. That's why we offer our cost estimator at no charge.
Estimate the construction cost instantly
2858
Homes designed
10431
Homes built
31
Years of experience
I design the homes that my clients want to build, not the home I want them to build
Buy with peace of mind knowing that your home has been designed by award winning designer Michael W. Garrell*. Mike has earned more than 200 professional awards, with numerous Street of Dreams® honers. One of his many show homes has earned him the prestigious “Best in American Living Award” (BALA) from Professional Builder magazine.
You may also like
-
Amicalola Garage Plan
2045SQFTWhitemoore B House Plan
3Beds3Baths2351SQFTWhitemoore A House Plan
3Beds3Baths2361SQFTLaurel Hill House Plan
3Beds2Baths1624SQFTBraymoore Manor
4Beds3Baths4813SQFT- Choosing a selection results in a full page refresh.











This beautifully designed two-story Craftsman-style home offers 1,554 square feet of heated living space, thoughtfully spread across a practical open floor plan. With 3 bedrooms, 2 full baths, and a convenient half bath, this home effortlessly balances space and comfort. The first floor includes a private primary bedroom suite and an inviting living area with 9-foot ceilings, making it ideal for both everyday living and entertaining. The kitchen and family space flow together seamlessly, creating a warm and connected atmosphere perfect for families of all sizes.
Upstairs, you'll find two additional bedrooms and access to a 305-square-foot unfinished rec room—ideal for a future playroom, office, or guest retreat. A covered 208-square-foot front porch adds Craftsman curb appeal, while the 2-car garage (506 sq. ft.) with a wide 16' x 9' door offers ample storage and convenience. With classic board and batten siding, a steep 12:12 roof pitch, and stick framing, this home combines timeless charm with practical features—all designed for modern living in a compact and efficient footprint.